Attraktives Mehrfamilienhaus mit 5 Wohnungen in Mühlheim-Lämmerspiel
Objektart
Haus
Objekttyp
Mehrfamilienhaus
Vermarktungsart
Kauf
PLZ
63165
Ort
Mühlheim
ImmoNr
904
Wohnfläche
ca. 264 m²
Grundstücksgröße
ca. 406 m²
Anzahl Zimmer
9
Anzahl Badezimmer
5
Kaufpreis
768.000,00 €
Energieausweis
Verbrauchsausweis
Energieeffizienzklasse
E
Energieausweis gültig bis
30.09.2034
Endenergieverbrauch
146 kWh/(m²a)
Wes. Energieträger
Gas
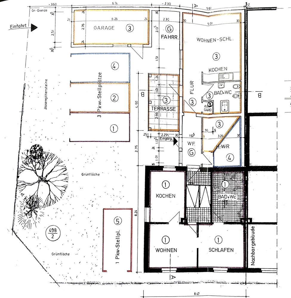
Zum Verkauf steht ein gepflegtes und gut vermietetes Mehrfamilienhaus mit insgesamt 5 Wohneinheiten, das sich aus einem zweigeschossigen Altbau (aus ca. 1917) mit ausgebautem Dachgeschoss und Keller sowie einem zweigeschossigen Anbau (Neubau aus 2012/ 2013) mit modernem Pultdach zusammensetzt. Der Anbau ist nicht unterkellert. Das Objekt bietet eine gelungene Kombination aus charaktervollem Altbau und zeitgemäßem Neubau, was sich nicht nur in der Architektur, sondern auch in der Mieterstruktur und Vermietbarkeit positiv widerspiegelt. Die Aufteilung ist wie folgt: EG-Bereich Flur Waschküche EG (Neubau): 1 Zi.-Whg. mit Balkon (ca. 45 qm) Hochparterre (Altbau): 2 Zi.-Whg. (ca. 56 qm) 1.OG (Neubau): 2 Zi.-Whg. (ca. 65 qm) 1.OG (Altbau): 2 Zi.-Whg. (ca. 56 qm) DG (Altbau): 2 Zi.-Whg (ca. 41,50 qm) Auf den Grundstück befinden sich 5 PKW-Stellplätze. Die Immobilie ist vollständig vermietet. Die aktuellen Netto-Jahresmieteinnahmen betragen ca. 37.679 € Alle bestehenden Mietverhältnisse sind als Staffelmietverträge ausgestaltet. Dies ermöglicht eine planbare, regelmäßige Erhöhung der Mieteinnahmen und bietet Käufern eine klare, transparente Ertragsperspektive. Eine detaillierte Mietaufstellung sowie die Staffelungspläne der einzelnen Verträge stellen wir bei ernsthaftem Interesse gerne zur Verfügung. Für das Haus liegt eine Angeschlossenheitsbescheinigung vor. Die rechtliche Aufteilung (Abgeschlossenheit) eröffnet zusätzliche Möglichkeiten – sowohl für institutionelle Anleger als auch für private Investoren mit Weitblick. Die eingestellten Fotos zeigen die Wohnungen vor der Vermietung. Gerne biete ich Ihnen einen Besichtigungstermin an. Ich freue mich über Ihren Anruf oder Ihre E-Mail.
Location
Die Immobilie befindet sich in zentraler Lage von Mühlheim am Main, in der Obertshäuser Straße, mit guter Anbindung und gewachsener Nachbarschaft. Das Umfeld ist geprägt von gepflegten Wohnhäusern und kleinen Mehrfamilienhäusern. Das Freibad von Mühlheim-Lämmerspiel ist fußläufig erreichbar. Alle Einkaufsmöglichkeiten für den täglichen Bedarf sind vor Ort vorhanden. Durch die Nähe zur Innenstadt sowie zur Stadtgrenze von Offenbach und Frankfurt bietet der Standort eine optimale Infrastruktur. Die B 448 verläuft direkt durch Lämmerspiel und führt in wenigen Fahrminuten zum Anschluss an die A 3 (über die B 45). Von hier erreichen Sie sowohl die Frankfurter Innenstadt als auch den Flughafen Frankfurt in kurzer Zeit. Ebenfalls schnell erreichbar ist die A 66, die Sie über die B 43/B 448 in Richtung Wiesbaden, Frankfurt oder Fulda führt. Damit sind sowohl die westlichen als auch die östlichen Teile des Rhein-Main-Gebiets optimal angebunden. Die Lage bietet somit eine sehr gute Erreichbarkeit für Pendler, was die Lage auch für Mieter äußerst attraktiv macht. Die Städte Obertshausen & Hanau sind in nur wenigen Minuten erreichbar - die Stadt Frankfurt in ca. 20 Minuten. Die S-Bahn (S1) in Obertshausen ist nur 7 Autominuten entfernt.
Equipment
Die Wohnungen sind wie folgt ausgestattet: - Moderne Einbauküchen - Laminat/ Fliesen - Doppelt verglaste Kuststofffenster - Geflieste Bäder Die Fertigstellung des Neubaus erfolgte 2013 (Baugenehmigung war ca. 2012). In diesem Zuge erfolgte auch eine Sanierung des Altbaus und zwar: - Teilweise Erneuerung der Leitungen im EG und OG - Teilweise Erneuerung der Stromleitungen im EG und OG - Teilweise Erneuerung der Wasserleitungen im EG und OG - DG wurde komplett neu ausgebaut - neue Leitungen, neue Elektrik Das Dach wurde ca. 1976 neu eingedeckt
Other Information
Alle Angaben in diesem Exposé wurden sorgfältig recherchiert und so vollständig wie möglich gemacht. Für die vom Eigentümer stammenden Objektdaten wird keine Haftung hinsichtlich des Zustandes, der Größe und Beschaffenheit übernommen. Maßgeblich sind die im Kaufvertrag geschlossen Vereinbarungen. Unsere Angebote sind freibleibend. Zwischenverkauf, Irrtum und Auslassungen bleiben vorbehalten. 5,95 % ink. MwSt. Käuferprovision, verdient und fällig nach Beurkundung des Kaufvertrages. Maklererlaubnis nach § 34c Gewerbeordnung wurde durch den Kreis Offenbach erteilt. Eine diskrete und seriöse Beratung ist selbstverständlich. Wir freuen uns über Ihren Anruf oder E-Mail. Weitere Angebote finden Sie auf unserer Homepage: www.sack-immobilien.de
Frau Ilona Sack
Hauptstr. 55 63303 Dreieich
0152 - 07 68 07 39


