Ein Zuhause mit Zukunft – Einfamilienhaus mit wunderschönem Garten in ruhiger Lage von Sprendlingen
Objektart
Haus
Objekttyp
Einfamilienhaus
Vermarktungsart
Kauf
PLZ
63303
Ort
Dreieich
ImmoNr
900
Wohnfläche
ca. 136 m²
Grundstücksgröße
ca. 615 m²
Anzahl Zimmer
4
Anzahl Badezimmer
2
Kaufpreis
689.000,00 €
Energieausweis
Bedarfsausweis
Energieeffizienzklasse
G
Energieausweis gültig bis
15.05.2035
Endenergiebedarf
249,9 kWh/(m²a)
Wes. Energieträger
Gas
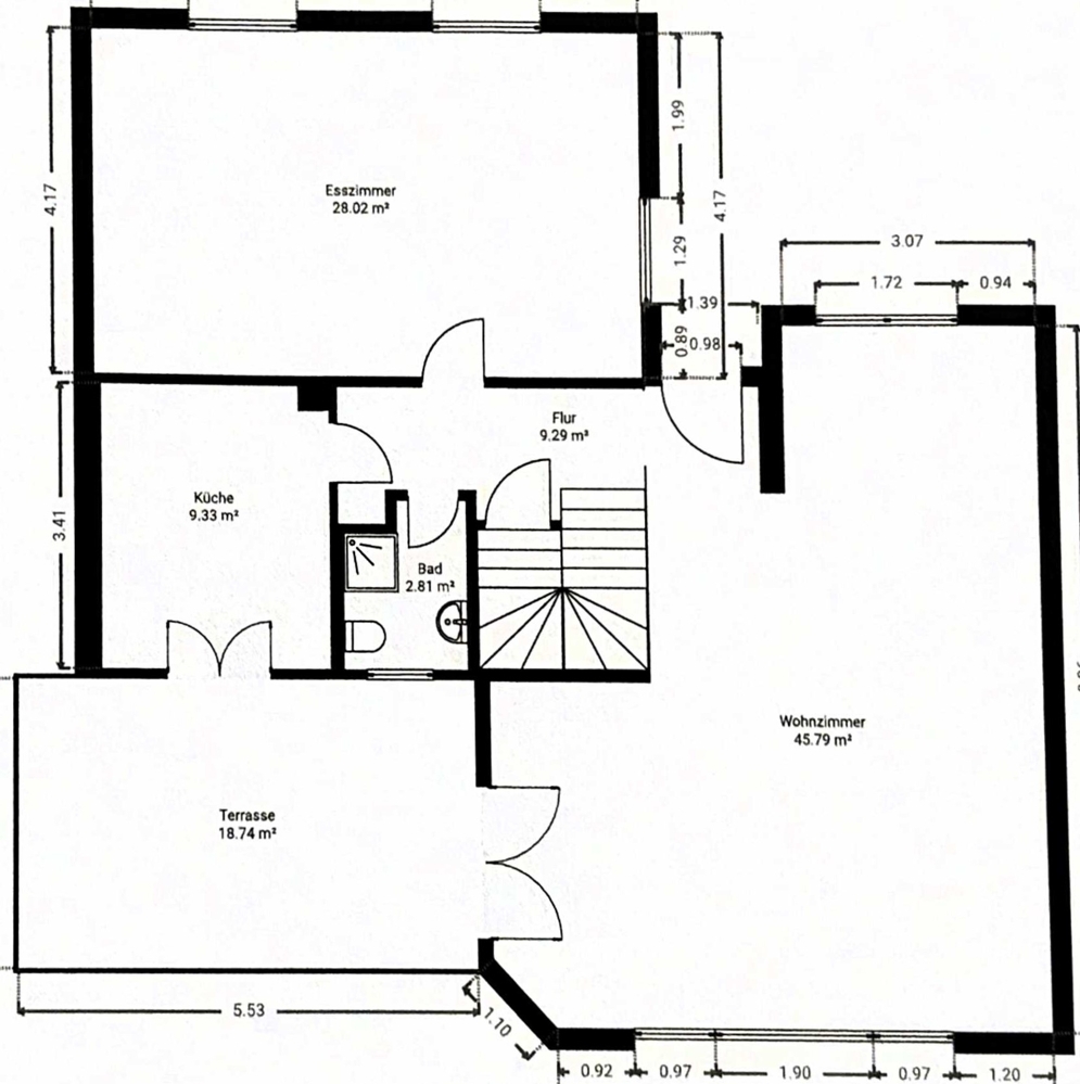
Dieses charmante Einfamilienhaus bietet eine solide Basis für alle, die sich den Traum vom eigenen Zuhause nach individuellen Vorstellungen erfüllen möchten. Das Haus wurde ca. 1955 errichtet und im Jahr 1991 erfolgte eine Wohnhauserweiterung im Erdgeschoss um das jetzige Wohnzimmer. Die Immobilie ist renovierungsbedürftig, überzeugt jedoch durch eine durchdachte Raumaufteilung, einen großzügigen Garten sowie eine Garage. Mit insgesamt 4 Zimmern eignet sich die Immobilie ideal für Paare oder Familien, die Wert auf Platz, Privatsphäre und Gestaltungsmöglichkeiten legen. Die Aufteilung ist wie folgt: - Flurbereich - Großes Wohnzimmer (Anbau aus 1991) mit Zugang zum Garten - Küche - Esszimmer - Tageslichtbad mit Dusche - Terrasse - Garten OG: - Flurbereich - Tageslichtbad mit Dusche - Kinderzimmer - Schlafzimmer mit Zugang zum Balkon - Balkon Der großzügige Garten ist ein echtes Highlight dieser Immobilie. Er bietet viel Freiraum für Familien, Gartenliebhaber oder gemütliche Sommerabende im Grünen. Das Haus ist teilunterkellert. Eine Garage und ein PKW-Außenstellplatz runden das Angebot ab. Gerne biete ich Ihnen einen Besichtigungstermin an. Ich freue mich über Ihren Anruf oder Ihre Mail.
Location
Die Immobilie liegt im Bäckerweg im Stadtteil Sprendlingen der Stadt Dreieich, einer ruhigen, familienfreundlichen Wohnlage mit überwiegend Ein- und Zweifamilienhäusern. Die ruhige Nachbarschaft und gepflegte Umgebung sorgen für eine hohe Wohnqualität. In direkter Umgebung finden Sie eine ausgezeichnete Auswahl an Betreuungseinrichtungen für Kinder: Zahlreiche Kindergärten und Kindertagesstätten stehen in Sprendlingen und den nahegelegenen Wohnstraßen zur Verfügung, darunter städtische Einrichtungen wie die Kindertagesstätte in der Schulstraße sowie weitere Angebote und freie Träger-Kitas – ideal für Familien mit Kleinkindern. Auch für den Schulweg ist bestens gesorgt: Mehrere Grundschulen wie die Erich-Kästner-Schule oder die Grundschule am Hengstbach sind im Stadtteil gut erreichbar. Weiterführende Bildungsangebote finden sich u. a. mit der Heinrich-Heine-Gesamtschule, dem Gymnasium Ricarda-Huch-Schule sowie der Weibelfeldschule im näheren Umfeld. Stadt Dreieich Einkaufsmöglichkeiten, Bäcker, Supermärkte und weitere Dienstleistungen sind fußläufig oder in wenigen Minuten mit dem Fahrrad erreichbar. Die Anbindung an öffentliche Verkehrsmittel ist hervorragend: Bus- und S-Bahn-Verbindungen gewährleisten eine schnelle Erreichbarkeit von Frankfurt am Main, Offenbach und Darmstadt, während die Autobahnen A3 und A661 schnellen Anschluss an das gesamte Rhein-Main-Gebiet bieten. Gleichzeitig laden Grünflächen, Spielplätze und Naherholungsgebiete zu Freizeitaktivitäten im Freien ein. Insgesamt bietet der Bäckerweg eine attraktive, familienfreundliche Lage mit sehr guter Infrastruktur, idealer Betreuungs- und Schulversorgung sowie starker Anbindung an die Metropolregion Frankfurt am Main.
Equipment
Das Haus ist wie folgt ausgestattet: - Zwei Tageslichtbäder - Überwiegend 3 -fach verglaste Kunststofffenster - Nicht einsehbarer Garten - Überdachte Terasse - Garage - PKW-Stellplatz Folgende größere Arbeiten wurden in den letzten Jahren durchgeführt: - Dacherneuerung: 2003 (Gaube mit Naturschiefer) - Neues Garagentor: 2016 - Alarmanlage: 2015 - Terrasse: neuer Boden 2016, Dach-Steg-Platten 2014 - Schlafzimmer- Renovierung: 2004 - Erneuerung Bad im EG: 1990 (inkl. Erneuerung der Leitungen) - Einbau einer Haustür: 2013 - Erneuerung der Balkonfliesen: 2016 - Neue Balkontür: 2000
Other Information
Alle Angaben in diesem Exposé wurden sorgfältig recherchiert und so vollständig wie möglich gemacht. Für die vom Eigentümer stammenden Objektdaten wird keine Haftung hinsichtlich des Zustandes, der Größe und Beschaffenheit übernommen. Maßgeblich sind die im Kaufvertrag geschlossen Vereinbarungen. Unsere Angebote sind freibleibend. Zwischenverkauf, Irrtum und Auslassungen bleiben vorbehalten. 3,57 % Käuferprovision vom Kaufpreis inkl. MwSt. sind verdient und fällig mit Beurkundung des notariellen Kaufvertrages. Der Immobilienmakler hat einen provisionspflichtigen Maklervertrag mit dem Verkäufer in gleicher Höhe abgeschlossen. Maklererlaubnis nach § 34c Gewerbeordnung wurde durch den Kreis Offenbach erteilt. Unser Service für Immobilieneigentümer: - kostenfreie Ermittlung des Marktwertes Ihrer Immobilie - Entwicklung einer optimalen Vermarktungsstrategie bis hin zum Vertragsabschluss - Durchführung aller Vermietungs- und Verkaufsaktivitäten Eine diskrete und seriöse Beratung ist selbstverständlich. Wir freuen uns über Ihren Anruf oder E-Mail. Weitere Angebote finden Sie auf unserer Homepage: www.sack-immobilien.de
Frau Daniela Kraft
Hauptstr. 55 63303 Dreieich
+49 1522 2526104


