Gepflegte Doppelhaushälfte (Reihenkettenhaus) mit wunderschönem Garten in Dietzenbach-Steinberg
Objektart
Haus
Objekttyp
Doppelhaushälfte
Vermarktungsart
Kauf
PLZ
63128
Ort
Dietzenbach / Dietzenbach-Steinberg
ImmoNr
867
Wohnfläche
ca. 170 m²
Grundstücksgröße
ca. 368 m²
Anzahl Zimmer
7
Anzahl Badezimmer
1
Kaufpreis
680.000,00 €
Energieausweis
Verbrauchsausweis
Energieeffizienzklasse
D
Energieausweis gültig bis
17.09.2034
Endenergieverbrauch
120 kWh/(m²a)
Wes. Energieträger
Fernwärme
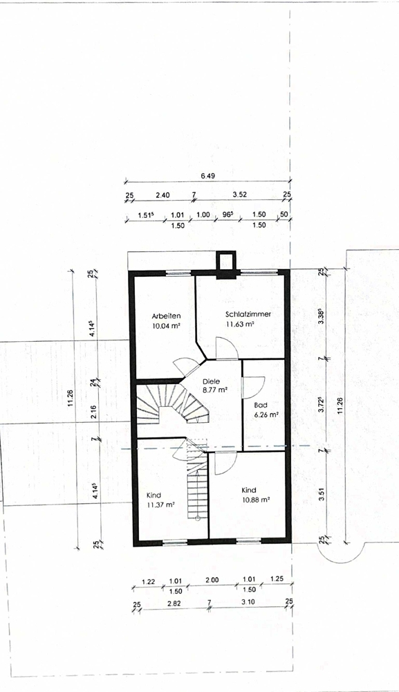
Willkommen in dieser gepflegten Doppelhaushälfte, die mit insgesamt 7 Zimmern, Küche und Bad viel Raum und Komfort bietet. Das Haus besticht durch seinen liebevoll gestalteten Garten, der viel Raum für Entspannung, Spiel und gesellige Abende im Freien bietet – ein echtes Highlight für Familien und Naturliebhaber. Sie genießen den Blick auf begrünte Dachflächen, die den Garten noch größer wirken lassen. Die im Erdgeschoss gelegene, geschlossene Küche (mit Einbauküche) ist durch eine Verbindungstür harmonisch an das angrenzende Esszimmer angebunden. Auf dieser Etage finden Sie auch das Gäste-WC sowie ein lichterfülltes, großzügiges Wohnzimmer mit viel Platz für gemeinsame Stunden am Kamin. Im Obergeschoss befinden sich 4 weitere Zimmer und das Bad, welches mit Dusche und Badewanne ausgestattet ist - ideal für entspannte Momente. Eines der Kinderzimmer hat eine praktische Hochebene, die zusätzlichen Stauraum und Spielmöglichkeiten bietet – perfekt für die kleinen Bewohner. Das Haus verfügt im Untergeschoss über einen ca. 30 m² großen zusätzlichen Wohnraum, der über großzügige Tageslichtfenster verfügt und somit eine helle, freundliche Atmosphäre bietet. Dieser vielseitig nutzbare Raum eignet sich perfekt als Jugendzimmer, Gästezimmer oder Home-Office und verleiht dem Zuhause zusätzliche Wohnqualität. In der oberen Etage, sowie im Untergeschoss (Wohnraum und Flur) wurden die Bodenbeläge kürzlich erneuert. Zusätzlich erhielt die Treppe vom Erdgeschoss ins Obergeschoss einen neuen, pflegeleichten Sisalteppich, der nicht nur optisch ansprechend ist, sondern auch eine gemütliche, warme Wohnatmosphäre schafft. Alles ist sehr gepflegt und bereit, von neuen Eigentümern bezogen zu werden. Greifen Sie zu und vereinbaren Sie noch heute einen Besichtigungstermin. Ich freue mich über Ihren Anruf oder Ihre Email.
Location
Dietzenbach ist eine lebendige und familienfreundliche Stadt im Herzen Hessens, die durch ihre angenehme Mischung aus Natur, urbanem Komfort und guter Infrastruktur besticht. Zahlreiche Grünflächen, Parks und Spielplätze laden zum Spielen und Erholen ein, sodass Kinder hier unbeschwert aufwachsen können. In der näheren Umgebung finden Sie alle wichtigen Einrichtungen wie Schulen, Kindergärten und Einkaufsmöglichkeiten, die den täglichen Bedarf bequem abdecken. Die Verkehrsanbindung ist ebenfalls sehr gut: Die Autobahnen A3 und A661 sind schnell erreichbar, was eine einfache Anbindung an Frankfurt, Darmstadt und andere größere Städte ermöglicht. Zudem sind die öffentlichen Verkehrsmittel gut ausgebaut, sodass Sie bequem mit Bus und Bahn unterwegs sind. Mit der - in 10 Minuten fußläufig erreichbaren - S-Bahn haben Sie eine optimale Anbindung an das gesamte Rhein-Main-Gebiet. Auch für Pendler mit dem Fahrrad attraktiv: Über gut erschlossene Radwege gelangen Sie von Dietzenbach aus durch grüne Waldlandschaften bequem z.B. nach Offenbach und Frankfurt. Die zentrale Lage und die gute Erreichbarkeit machen Dietzenbach zu einem attraktiven Ort für Familien, die eine ruhige Umgebung mit schnellen Verbindungen ins Stadtzentrum suchen.
Equipment
Die Ausstattung ist wie folgt: - Fliesen im Erdgeschoss - Vinyl im Obergeschoss und Teilbereichen des Untergeschosses, neu 2022 - Treppe mit neuem Sisalteppich - Fußbodenheizung im Erdgeschoss - Kamin - Küche mit Einbauküche - Neue Tapeten und Neuanstrich innen in 2021 - Teil-Neuanstrich außen 2022 - Holzfenster, 2-fach verglast, Neuanstrich 2021 - Gäste WC: neue Toilette, neues Waschbecken 2021 - Badezimmer: neue Toilette 2021 - Rollläden im gesamten Haus (Rollläden "hinten" neu 2020) - Neue Fallrohre vorne 2021 - Ein Zimmer mit praktischer Hochebene - Dachboden als zusätzlichen Stauraum - Untergeschoss mit 30 qm Wohnraum - Garage mit zusätzlichem Stellplatz direkt davor auf dem eigenen Hof
Other Information
Alle Angaben in diesem Exposé wurden sorgfältig recherchiert und so vollständig wie möglich gemacht. Für die vom Eigentümer stammenden Objektdaten wird keine Haftung hinsichtlich des Zustandes, der Größe und Beschaffenheit übernommen. Maßgeblich sind die im Kaufvertrag geschlossen Vereinbarungen. Unsere Angebote sind freibleibend. Zwischenverkauf, Irrtum und Auslassungen bleiben vorbehalten. 3,57 % Käuferprovision vom Kaufpreis inkl. MwSt. sind verdient und fällig mit Beurkundung des notariellen Kaufvertrages. Der Immobilienmakler hat einen provisionspflichtigen Maklervertrag mit dem Verkäufer in gleicher Höhe abgeschlossen. Maklererlaubnis nach § 34c Gewerbeordnung wurde durch den Kreis Offenbach erteilt. Unser Service für Immobilieneigentümer: - kostenfreie Ermittlung des Marktwertes Ihrer Immobilie - Entwicklung einer optimalen Vermarktungsstrategie bis hin zum Vertragsabschluss - Durchführung aller Vermietungs- und Verkaufsaktivitäten Eine diskrete und seriöse Beratung ist selbstverständlich. Wir freuen uns über Ihren Anruf oder E-Mail. Weitere Angebote finden Sie auf unserer Homepage: www.sack-immobilien.de
Frau Daniela Kraft
Hauptstr. 55 63303 Dreieich
+49 1522 2526104


